Esta es la segunda seccion que hago y he intentado mostrar lo que me comentabáis de hacer mas presente la estructura en la sección, por lo que he marcado los perfiles y lo que es relleno de lo que realmente es estructura, aunque sin los sombrados que aclaren lo que es interior y exterior creo que pierde mucho la sección.
jueves, 17 de noviembre de 2011
lunes, 7 de noviembre de 2011
volviendo a las fachadas
He estado dándole vueltas a lo de las fachadas y he pensado que quizás es mejor para el proyecto darle mayor continuidad al volumen creando una malla estructural regular e incluyéndole arriostramientos que funcionen como si cosieran el edifico compelto, no sólo una parte de él. Esto es un esquema pero espero que la idea se pueda ver bien
miércoles, 2 de noviembre de 2011
bocetos de alzados_ la estructura industrial ocupada por la naturaleza
Estos son unos bocetos de cómo podrían ser los alzados, una malla estructural de acero y tras ella un cerramiento acristalado separados por una por una pasarela de mantenimiento.
Esta es la fachada que mira al río y en la que se producen el mayor número de terrazas, además en este lado comienza el recorrido ascensional a través de las terrazas ajardinadas.
Esta es la fachada que mira al río y en la que se producen el mayor número de terrazas, además en este lado comienza el recorrido ascensional a través de las terrazas ajardinadas.
lunes, 31 de octubre de 2011
plantas y una sección
Sección por las terraza 1 mirando hacia la fachada vegetal
Planta de acceso (nivel de calle)
Planta -1 (nivel río)
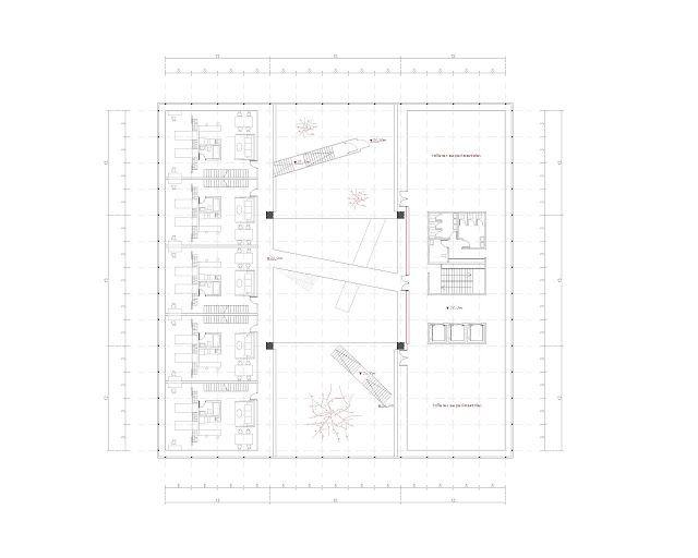
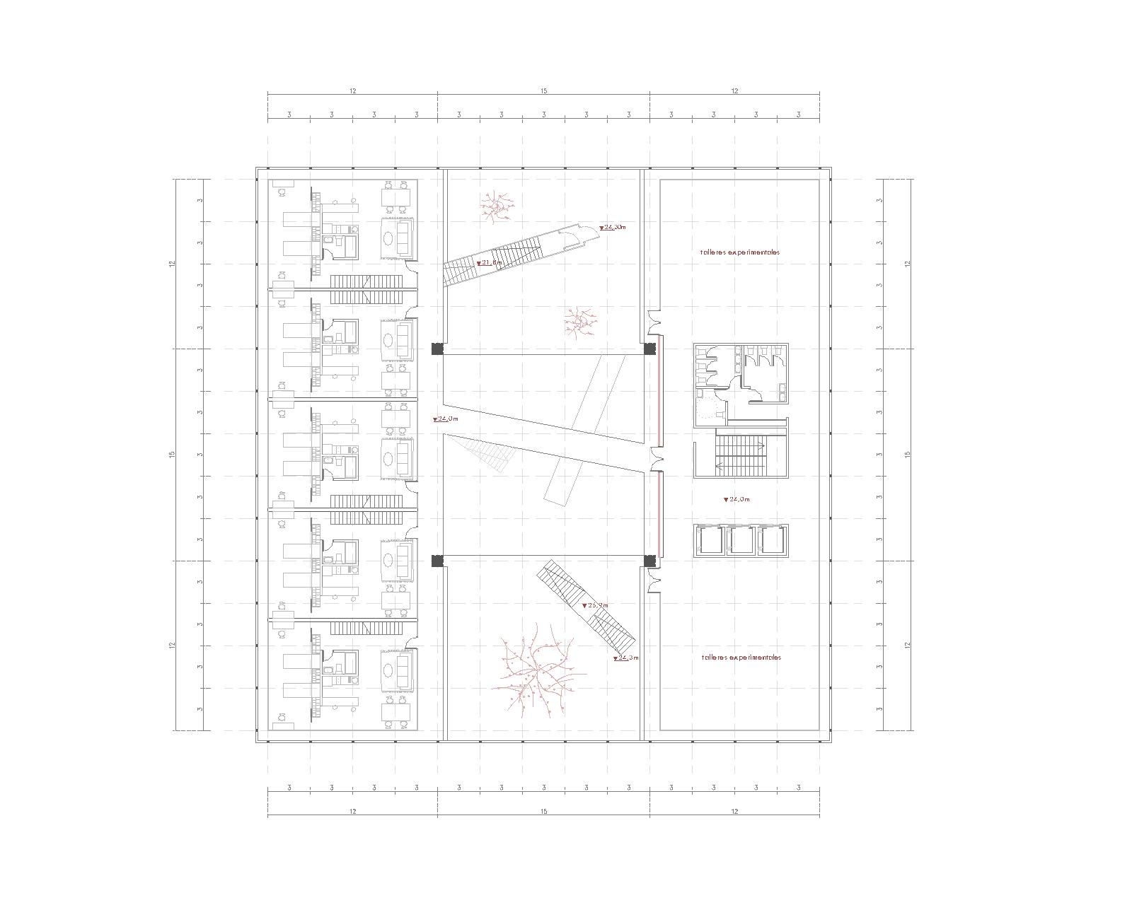
Planta 4 (espacio de trabajo y viviendas estudiantes)
Planta 6 (talleres y viviendas estudiantes)
Planta 7 (espacio de trabajo y talleres) JARDÍN 5
Planta 8 (espacio de trabajo y talleres)
Planta 9 (profesorado: zona de trabajo y viviendas)
Planta 10 (biblioteca, aula digital, tienda y reprografía)
Planta de cubiertas JARDÍN 6
Planta de acceso (nivel de calle)
Planta -1 (nivel río)
Planta 1 (administración y dirección) JARDÍN 1
Planta 2 (aulas y espacio de trabajo) JARDÍN 2Planta 3 (espacio de trabajo y viviendas estudiantes)
Planta 4 (espacio de trabajo y viviendas estudiantes)
Planta 6 (talleres y viviendas estudiantes)
Planta 7 (espacio de trabajo y talleres) JARDÍN 5
Planta 8 (espacio de trabajo y talleres)
Planta 9 (profesorado: zona de trabajo y viviendas)
Planta 10 (biblioteca, aula digital, tienda y reprografía)
Planta de cubiertas JARDÍN 6
jueves, 27 de octubre de 2011
Organigrama funcional
Este es una axonometría con los bloques funcionales y la relación entre ellos y los espacios ajardinados del edificio con la intención de mostrar cómo se eleva la naturaleza desde el suelo hasta la cubierta del edificio.
PD las plantas con las escaleras ya las he terminado, cuando tenga unas secciones representativas y algún boceto de alzados lo cuelgo
jueves, 20 de octubre de 2011
INDUSTRIA VERSUS NATURALEZA
La idea del proyecto he intentado ir depurándola y dándole más intensidad. La intención es potenciar la imagen de un edificio industrial ocupado con la naturaleza, con una red de espacios verdes que se conectan entre sí y que arrancan del suelo y suben hasta la cubierta, de tal manera que creando un volumen compacto y en altura estamos devolviendo al lugar máz zonas verdes de las que le hemos sustraído con la construcción.
Estas son las plantas y secciones que tenía el miércoles.
Después de estar hablando el miércoles con los compañeros he decidido limpiar algunas cosas del proyecto, empezando por quitar el volumen que conectaba la calle y el río y servia de acceso y mirador pues creo que con la red de espacios verdes ya se consigue una buena interacción con el entorno.
Las claves del proyecto que estoy desarrollando son las siguientes:
- Volumen duro y compacto que demuestre claramente su carácter industrial con su estructura metálicas vista
- Ocupación por parte de la naturaleza de este volumen industrial, como si fuese una espiral que nos lleva la naturaleza desde el suelo hasta la parte más alta.
- Trama de escaleras que comunican las distintas zonas verdes del edificio entre sí o bien produciendo relaciones con lso espacios interiores de la escuela.
Estas son las fotos de la última reforma de la maqueta.
Estas son las plantas y secciones que tenía el miércoles.
Después de estar hablando el miércoles con los compañeros he decidido limpiar algunas cosas del proyecto, empezando por quitar el volumen que conectaba la calle y el río y servia de acceso y mirador pues creo que con la red de espacios verdes ya se consigue una buena interacción con el entorno.
Las claves del proyecto que estoy desarrollando son las siguientes:
- Volumen duro y compacto que demuestre claramente su carácter industrial con su estructura metálicas vista
- Ocupación por parte de la naturaleza de este volumen industrial, como si fuese una espiral que nos lleva la naturaleza desde el suelo hasta la parte más alta.
- Trama de escaleras que comunican las distintas zonas verdes del edificio entre sí o bien produciendo relaciones con lso espacios interiores de la escuela.
Estas son las fotos de la última reforma de la maqueta.
miércoles, 19 de octubre de 2011
plano de emplazamiento 1:2000
la idea es crear un sistema de pasarelas de madera creando una red, que se van acercando al río y que a veces se posan sobre el suelo y otras veces vuelan sobre él intentando potenciar la idea del proyecto de ocupar la mínima porción de suelo posible con el fin de respetar al máximo las condiciones del suelo existente.
Impreso sale mucho más clarito, pero la verdad es que no me he parado a hacer otras plumillas para el jpg.
lunes, 19 de septiembre de 2011
prueba plano de situación
La intención es mostrar la dualidad industria-naturaleza por eso destaco todod el entramado industrial que se apoya en el río y las zonas verdes que lo enmarcan intentando mostrar el contrsaste. Me faltan los cultivos y por supuesto situar el edificio, pero quería ver que os parece el encuadre. Finalmente es a 1:10000 porque así se muestra todo el tejido industrial y se ve dónde empieza y dónde acaba. La calidad es muy mala, pero impreso quedará mucho mejor. También se marcan de manera clara las líneas ferroviarias, ligadas a la infraestructura industrial y que podrían hablar de la conexión del proyecto son la ciudad.
cambios en el proyecto
No he podido subir antes esto porque he estado de hospitales y la verdad es que me negaba a pagar 5 euros por tener internet, jeje, así que aunque sea un poco chapuza lo subo así a ver qué os parece.
En la planta de acceso tendríamos el volumen de acceos que conecta la calle con e río y que se usa como atrio y sala de exposiciones. En el volumen principal tendríamos el salón de actos y la conserjería. Lo que está sombreado en gris es vacío y ese vacío mira al río y a la planta inferior donde se sitúa la cafeteria, club de alumnos y demas zonas de socialización.
En la planta primera tendríamos lo que son despachos de profesores, salas de reuniones y zonas de tutoría.
En la planta segunda tenemos a un lado toda la zona de administración y dirección y al otro la zona de aulas teóricas separadas por un patio con lucernarios en el que intentaré ver también cómo introducir algo de vegetación
En la planta tercera ya comienza la separación entre zona de viviendas y zona de estudio por un patio, y aunque las viviendas tienen un núcleo propio creo que es necesario que cada planta de trabajo se conecte también con las viviendas.
Planta cuarta
Planta 4ª B
PLANTA 5
PLANTA 6
PLANTA 7
PLANTA 8
PLANTA 9
PLANTA 9. La planta superior como en el proyecto anterior se concibe como el espacio de usos públicos y en la cubierta se pretende hacer una cubierta parque.
DUDAS: Las viviendas de los profesores que antes tenía en la cubierta no sé si mantenerlas o no, aunque con la fachada de celosía y pasillo de mantenimiento se seguiría viendo como un volumen puro.
En primer lugar subo la sección en paralelo al rio porque creo que es lo que mejor refleja el cambio del proyecto y la relación de pequeño volumen de acceso con el resto del edifico, así como las conexiones espaciales entre lso distintos espacios de trabajo, que se organizan tipo sandwich (es decir los talleres en las plantas intermedias rodeados arriba y abajo por las zonas de trabajo).
En la planta de acceso tendríamos el volumen de acceos que conecta la calle con e río y que se usa como atrio y sala de exposiciones. En el volumen principal tendríamos el salón de actos y la conserjería. Lo que está sombreado en gris es vacío y ese vacío mira al río y a la planta inferior donde se sitúa la cafeteria, club de alumnos y demas zonas de socialización.
En la planta primera tendríamos lo que son despachos de profesores, salas de reuniones y zonas de tutoría.
En la planta segunda tenemos a un lado toda la zona de administración y dirección y al otro la zona de aulas teóricas separadas por un patio con lucernarios en el que intentaré ver también cómo introducir algo de vegetación
En la planta tercera ya comienza la separación entre zona de viviendas y zona de estudio por un patio, y aunque las viviendas tienen un núcleo propio creo que es necesario que cada planta de trabajo se conecte también con las viviendas.
Planta cuarta
Planta 4ª B
PLANTA 5
PLANTA 6
PLANTA 7
PLANTA 8
PLANTA 9
PLANTA 9. La planta superior como en el proyecto anterior se concibe como el espacio de usos públicos y en la cubierta se pretende hacer una cubierta parque.
DUDAS: Las viviendas de los profesores que antes tenía en la cubierta no sé si mantenerlas o no, aunque con la fachada de celosía y pasillo de mantenimiento se seguiría viendo como un volumen puro.
jueves, 1 de septiembre de 2011
RESUMEN DEL VERANO
Ahí va un resumen de este verano pre-PFC:
- He hecho mi primera dirección de obra ( en la ampliación del hotel de mis padres, pero algo es algo), peleándome con los albañiles, carpinteros, electricistas y demás.
- Me he dedicado igualmente a diseñar toda la renovación que van a hacer del hotel, eligiendo papeles, cortinas, muebles, etc
- He hecho unos cuantos logos, unos para negocios nuestros, otros para concursos... ha sido divertido
Y ahora estoy (si me dejan) cambiando cosas muy significativas del proyecto pero que todavía no las he conseguido. Los aspectos en los que estoy actuando son los siguientes:
1.- La fachada: en el proyecto me empeñé en la fachada de madera con huecos cuando en realidad lo que creo que le convenía al proyecto era algo más abierto que englobara los distintos usos, más del tipo de la fachada del proyecto de la sede de Cemex del cuatri anterior.
2.- El encuentro con el suelo: el encuentro del edificio con el suelo pretendía ser "natural" acercándose al río pero creo que en realidad era muy forzado y no reforzaba el proyecto. La idea ahora mismo es que el volumen compacto de la escuela se separe más de la calle y sea atravesado por una "pieza puente" que lo "enganche" a la tierra por un lado y lo vuelque sobre el río al otro.
- He hecho mi primera dirección de obra ( en la ampliación del hotel de mis padres, pero algo es algo), peleándome con los albañiles, carpinteros, electricistas y demás.
- Me he dedicado igualmente a diseñar toda la renovación que van a hacer del hotel, eligiendo papeles, cortinas, muebles, etc
- He hecho unos cuantos logos, unos para negocios nuestros, otros para concursos... ha sido divertido
Y ahora estoy (si me dejan) cambiando cosas muy significativas del proyecto pero que todavía no las he conseguido. Los aspectos en los que estoy actuando son los siguientes:
1.- La fachada: en el proyecto me empeñé en la fachada de madera con huecos cuando en realidad lo que creo que le convenía al proyecto era algo más abierto que englobara los distintos usos, más del tipo de la fachada del proyecto de la sede de Cemex del cuatri anterior.
2.- El encuentro con el suelo: el encuentro del edificio con el suelo pretendía ser "natural" acercándose al río pero creo que en realidad era muy forzado y no reforzaba el proyecto. La idea ahora mismo es que el volumen compacto de la escuela se separe más de la calle y sea atravesado por una "pieza puente" que lo "enganche" a la tierra por un lado y lo vuelque sobre el río al otro.
3.- Reestructuración de usos y comunicaciones: Cambiar el núcleo común de comuicaciones por varios que respondan a las distintas necesidades de movimientos dentro del edificio. Pasar de lo general a lo específico.
NOS VEMOS EL LUNES!!!!
Suscribirse a:
Comentarios (Atom)


































